Статья из категории: Самоделки

Измельчитель овощей своими руками

Измельчитель овощей своими руками

Картофель, кормовую свеклу и топинамбур всегда высеваю на приличных площадях. Чтобы быстро и без потерь переработать урожай, смастерил измельчитель клубней (рис. 1).

В предлагаемых чертежах (рис. 2-6) отсутствуют эскизы подключения э/д. поскольку это зависит от индивидуального пыборп привода.

Технологическая схема


Я использовал трехфазный низкооборотный двигатель 0,4 кВт, 300 об/мин. (ссть и такие!), подключенный на напряжение 380 В. Его часто применяют в домашних хозяйствах для силового ввода.

Мотор состыковал с измельчителем через зубчатую полумуфту цепью с шагом 25,4 мм. Станину э/д прикрутил болтами к сварной платформе из листовой стали толщиной 4-6 мм, фиксируемой на рабочем столс. В целях техники безопасности платформу снабдил бортиками, защищающими от случайного контакта с цепью полумуфты.

К платформе приварил корпус измельчителя, который представляет собой прямоугольный цилиндр. Внутри него расположил рабочий орган — вал с двумя ножами из инструментальной стали.

Моя установка превращает 10 кг свеклы в рубленную массу за 1-1,5 мин.!

На заметку
Переработка клубней не требует их предварительной подготовки — разрезания на более мелкие куски.

Измельчитель овощей своими руками – чертежи

Самодельный садовый измельчитель – чертежиСамодельный садовый измельчитель – чертежи

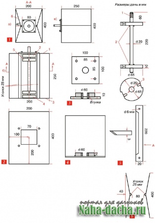
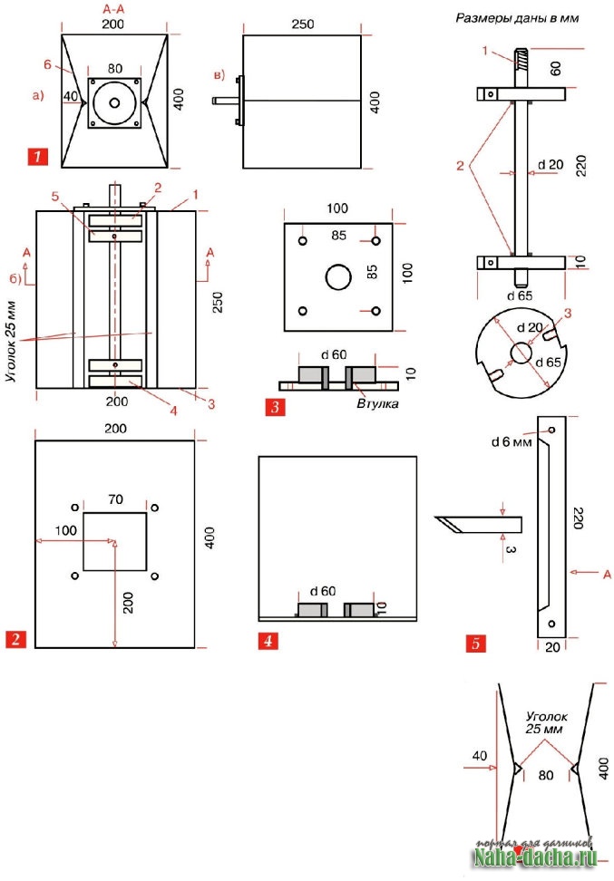
Рис. 1. Общий вид измельчителя
1 и 3 — передняя и задняя стенки, 2и 4 – передняя и задняя опоры, 5 — вал измельчителя, 6 — средняя стенка: а — вид спереди, 6 — вид сверху, в — вид сбоку
Рис. 2. Передняя стенка
Рис. 3. Передняя спора

Примечание. Втулку приварил к пластине толщиной 3 мм; латунь Dbh20mm, Dнар 30 мм (под запрессовку).
Рис. 4. Задняя стенка с опорой (вид сверху)
Рис. 5. Вал измельчителя
1 — шпоночная канавка, 2 — места электросварки, 3 — место установки ножа

Примечание. Ножи (2 шт.) установил через 180 град.
Примечание. Стенку получил, изогнув по центру пластины 250×400 мм (2 шт.).
Николай Нтитко, д. Орсичи Могилевской обл.
Фото автора

Похожие статьи:
  • Корморезка своими руками для корнеплодов Корморезка своими руками для корнеплодов Тому, кто держит на подворье большое количество молодняка, без механизации в приготовлении корма...
    Тракторный прицеп-самосвал своими руками Тракторный прицеп-самосвал своими руками Процесс перевозки любого груза всегда складывается из трёх составляющих: погрузка, доставка и...
    Бензорез из бензопилы своими руками Бензорез из бензопилы своими руками Из-за длительной нагрузки или неправильного обращения у бензопилы частенько выходит из строя ее...
    Электроплуг на резиновом ходу Электроплуг на резиновом ходу Обрабатывать небольшие и ровные участки земли удобнее всего с помощью электролебедки....
    Садовый подсвечник в японском стиле Садовый подсвечник в японском стиле Японский стиль — это всегда лаконичность, простота и натуральные материалы. Вот почему такие вещицы...
    Станок для шиномонтажа Станок для шиномонтажа Легковые автомобили у деревенских жителей есть, а вот станций технического обслуживания (СТО) —...
  •   ::   просмотров - 13598   ::   комметариев - 0

    Ключевые теги: измельчитель

    Популярное

    календарь дачника
    «    Январь 2026    »
    ПнВтСрЧтПтСбВс
     
    1
    2
    3
    4
    5
    6
    7
    8
    9
    10
    11
    12
    13
    14
    15
    16
    17
    18
    19
    20
    21
    22
    23
    24
    25
    26
    27
    28
    29
    30
    31
     
    Обрати внимание:
    Наши друзья
    Благодаря сайту www.umeltsi.ru вы можете построить дом, дачу, сделать ремонт квартиры, создать самодельные станки, приспособления, тоесть сделать - самоделки своми руками.
    Счетчики