Статья из категории: Самоделки

Простая ретро-этажерка на дачу

ретро-этажерка

Чтобы порадовать своих родных, смастерил простенькую и в то же время полезную в хозяйстве вещицу — ретро-этажерку.
ретро-этажерка чертеж

Заготовки для этажерки


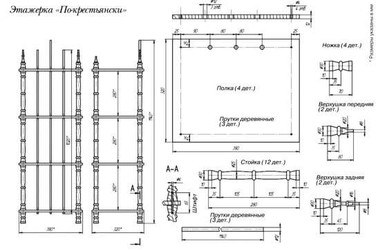
Начертил эскиз всех деталей этажерки (см. рис.) Из фанеры толщиной 12 мм вырезал 4 квадратные полочки. Просверлил в них по углам отверстия для сборочных штифтов. Во всех полках высверлил с одной стороны по три отверстия для стеновых прутков. Зачистил все кромки и поверхности.

Из черенков d 40 мм нарезал 12 заготовок на балясины и еще 8 (для верхушек и ножек этажерки). На токарном станке выточил фигурные заготовки (фото 1) Ножовкой по металлу подрезал выточен ные детали по длине. Чтобы при работе сверло не уходило в сторону, а отверстия под штифты получались одинаковыми по глубине, изготовил из березового бруска насадку (фото 2). Перьевым сверлом d 30 мм углубился на 5 мм в брусок, затем в получившейся выемке просверлил сквозное отверстие d 4 мм. Готовые детали зачистил мелкой наждачкой и покрасил спиртовой морилкой цвета мокко.

ретро-этажерка

Сборка этажерки


На штифты и клей ПВА-М собрал конструкцию в следующем порядке: ножки прикрепил к нижней полке, все балясины — к промежуточным полкам, закрепил верхушки, три стеновых прутка продел через всю конструкцию и прибил гвоздиками.

Собранную этажерку установил на ровную поверхность, сверху положил небольшой груз и оставил сохнуть. Отшлифовал х/б тканью.

Чертеж этажерки



ретро-этажерка чертежретро-этажерка чертеж

Анатолий Матвейчук г. Заводоуковск.
Фото автора

Похожие статьи:
  • Навесная этажерка на дачу Навесная этажерка на дачу Для кухни изготовил навесную полку в стиле ретро. Такая конструкция подойдет для детской, спальни...
    Обувная тумба для прихожей Обувная тумба для прихожей Наводя порядок в кладовой, собрал много обрезков доски. Распорядился находкой с пользой, смастерив...
    Компактный столик-подставка своими руками Компактный столик-подставка своими руками Из многослойной фанеры смастерил компактный столик-подставку. Такой предмет мебели можно установить...
    Детская табуретка своими руками Детская табуретка своими руками Детям очень нравятся такие табуретки из-за их небольшой высоты. Кроме того, сосновая доска...
    Пуф из старых полок Пуф из старых полок Разобрал старый шкаф. Пригодились его полки, из которых смастерил пуф с отсеком для мелочей....
    Этажерка для инструментов Этажерка для инструментов Почти весь год, в летнее время — на даче, в квартире — зимой, я занимаюсь ремонтом, строительством....
  •   ::   просмотров - 4947   ::   комметариев - 0

    Популярное

    календарь дачника
    «    Январь 2026    »
    ПнВтСрЧтПтСбВс
     
    1
    2
    3
    4
    5
    6
    7
    8
    9
    10
    11
    12
    13
    14
    15
    16
    17
    18
    19
    20
    21
    22
    23
    24
    25
    26
    27
    28
    29
    30
    31
     
    Обрати внимание:
    Наши друзья
    Благодаря сайту www.umeltsi.ru вы можете построить дом, дачу, сделать ремонт квартиры, создать самодельные станки, приспособления, тоесть сделать - самоделки своми руками.
    Счетчики