Для кухни изготовил навесную полку в стиле ретро. Такая конструкция подойдет для детской, спальни или ванной комнаты.
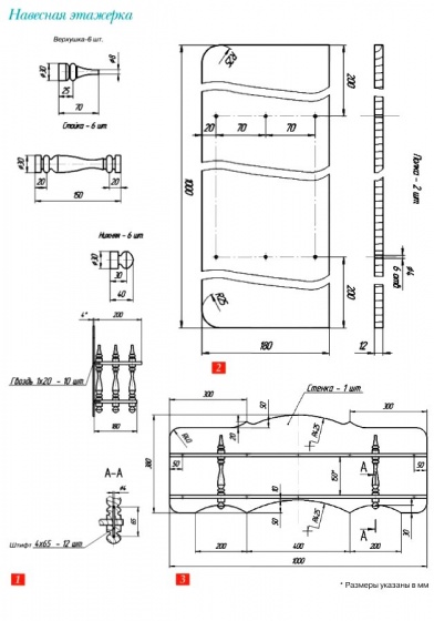
Понадобилось: две сосновых доски размером 20x220x1200 мм, два березовых черенка d 40 мм длиной 1200 мм обрезок, трехслойной фанеры размером 400x1200 мм.
Из черенков нарезал шесть заготовок одного размера и на токарном станке выточил из них балясины (см. рис. п. 1) Разрезал каждую из них на 3 части. Разметил и просверлил в торцах заготовок отверстия d 3:8 мм для сборки на металлические прутки, которые изготовил из проволоки d 4 мм.
Из досок электрорубанком выстрогал две полочки размерами 12x200x800 мм (п. 2) Разметил и просверлил в каждой полке по шесть отверстий справа и слева для крепления балясин. Зачистил поверхности и кромки заготовок сначала крупной, а затем — мелкой шкуркой.
На листе фанеры начертил контур задней стенки, согласно эскизу (п. 3), и выпилил ее электролобзиком. Разметил и просверлил все необходимые отверстия для дальнейшей сборки (под гвозди и для навески на стену). Обработал поверхности стенки мелкой наждачной бумагой.
Все готовые детали покрасил морилкой в два слоя с межслойной просушкой. Собрал конструкцию. С помощью проволочных штифтов закрепил балясины, предварительно заполнив отверстия в них небольшим количеством клея ПВА-М.
Готовую этажерку отполировал куском войлока (можно покрыть лаком).
Положить на этажерку можно мухобойку
Навесная этажерка
Мухобойка своими руками
После долголетних испытаний различных магазинных конструкций для «охоты» на мух в домашней обстановке изготовил свою мухобойку.

Из старого валенка (можно из войлочной стельки) вырезал боек-лопасть размером 100х 150 мм. Для ручки использовал алюминиевый пруток d 15 мм длиной 350 мм. Расплющил один его конец и просверлил в нем два отверстия d 2,5 мм (фото 1); снял в отверстиях фаски и зачистил заусенцы. На алюминиевую заготовку надел отрезок ПВХ трубы подходящего диаметра и длины, предварительно надрезав один ее конец в месте крепления к бойку.
Собрал мухобойку, сшив вместе (крест-накрест, через отверстия в расплющенной части алюминиевого прутка) боек, пруток и трубку (фото 2). При помощи пассатижей загнул другой конец ручки мухобойки в ушко для удобного хранения (подвешивания на стену) инструмента.