Статья из категории: Самоделки

Стол-книжка своими руками

Стол-книжка своими руками

Столы-книжки известны давно и они неизменно пользуются спросом, поскольку занимают мало места. Но приобрести в магазине стол нужных размеров не всегда представпяется возможным, поэтому зачастую приходится рассчитывать на свои руки и смекалку.

Предлагаемый столик сделан из ясеня. Можно использовать и другие породы дерева, например, вишню ипи клён, даже хвойные, но наиболее привлекателен всё же ясень из-за его крупной текстуры. Всё зависит от Ваших вкусов и возможностей.

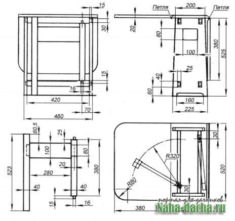
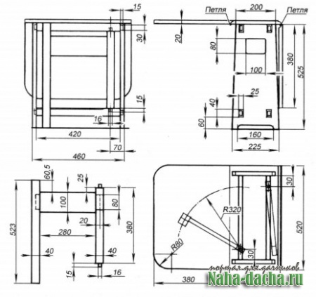
Столешница состоит из центральной неподвижной части и двух навешанных на петпях «крыльев» толщиной 20 мм.

Центральная часть столешницы закреппена на двух сплошных боковых стенках, в которых выпилены окна, испопьзуемые как ручки для переноса стола. Для жёсткости всей конструкции стенки соединены на клею четырьмя перемычками на широких шипах, что необходимо для увеличения поверхности склейки. Откидные ножки поворачиваются на деревянных шкантах, вставпенных в отверстия в верхних и нижних перемычках.

Главной особенностью стола является сочленение внутренних торцов «крыльев» и внешних торцев центральной части столешницы. Они спрофипированы так, чтобы при соприкосновении часть нагрузки с «крыпьев» передавалась на центральную часть столешницы, разгружая петли. При этом Вам придётся приобрести или одолжить у знакомых министанок-фрезер.

В основе любого рукоделия лежит подготовка исходных материалов. Боковины и центральную часть столешницы можно изготовить из двух сплочённых досок толщиной 20 мм, а крылья - из трёх, но лучше сделать из одной, тем более, что её ширина не превышает 225 мм. Если Вы сделаете ставку на сплочённые доски, то их следует выдержать до полного высыхания клея, а ещё лучше предусмотреть дополнительное соединение на шипах. Толщина досок это допускает, но главное - точно разметить отверстия под шипы, чтобы при стыковке не образовался уступ. В противном случае, потребуется дополнительная обработка, включая циклёвку.

Подготовив заготовки боковых стенок, необходимо на них нанести разметку. Пазы под перемычки (заготовки размерами 25x40x450 мм) можно вырезать вручную, но лучше вертикальной фрезой, но так, чтобы, глубина их не превышала 15 мм. Если фрезы под рукой нет, то можно воспользоваться 8-мм сверлом и высверлить ненужную древесину и спрямить стенки стамеской.

Стол-книжка своими рукамиСтол-книжка своими руками

Окна в боковинах можно сделать, просверпив в их угпах отверстия диаметром 14 - 16 мм. Чтобы избежать сколов древесины на доске лучше по разметке просверпить отверстие небольшого диаметра, а затем - перовым сверлом, но только до середины. Делать это нужно с двух сторон доски. Тогда получатся аккуратные кромки отверстия с обеих сторон доски. Затем лобзиком вырезаем окна. Можно это сделать и фрезой. Естественно, после каждой операции следует зачистить всё наждачной бумагой.

Внешние стороны боковин лучше выпилить ленточной пилой и, удалив лишнюю древесину, пройтись рубанком по их граням.

Для изготовления перемычек между боковинами особые навыки не потребуются, достаточно точно руководствоваться чертежом. Правильно вырезанные и подогнанные под соответствующие отверстия шипы ппотно войдут в них и после высыхания клея не позволят расшатываться всей конструкции. Поскольку, как правило, шипы и отверстия под них индивидуальны, то их. во избежание путаницы, следует пронумеровать. Допопнительную жёсткость столу придаст центральная часть столешницы. Закрепить её можно на шипах или кнопках, как показано на фото.

Перед тем как начать общую сборку, следует в перемычках высверлить гнёзда под шканты на гпубину 15 мм для откидывающихся ножек и собрать стол «насухо», сделав карандашом необходимые пометки.

Стол-книжка своими рукамиСтол-книжка своими руками

Скпадные опоры состоят из ножки (заготовки размерами 25x40x523 мм), соединённой одной широкой перемычкой со стойкой (заготовки размерими 25x40x380 мм). Ножки должны быть на 2 мм короче боковин, чтобы свободно убираться под центральную часть столешницы. Для компенсации разницы в высоте, чтобы «крыпья» были горизонтальны, снизу к ним стоит прикрепить металлический упор-уголок с 2-мм стенками. Он не только исключит наклон, но и послужит упором для складных опор. Можно, конечно, сделать упор из дерева в виде бобышке, но это сложнее.

В перемычках, соединяющих боковины, на расстоянии 50 мм от края сверлом диаметром 16 мм просверлите вертикальные гнёзда под шканты.

В торцы стоек с двух сторон вклейте шканты так, чтобы они выступали на 15 мм, и обработайте их наждачной бумагой, обеспечив свободное вращение в гнёздах.

В ножке и стойке фрезером следует вырезать пазы для шипов перемычки. Правда, для этого придётся сделать соответствующее металлическое приспособление -кондуктор.

На концах перемычки (заготовки размерами 20x100x320 мм) выпилите шипы под пазы на ножке и стойке. Можно, конечно, обойтись и без этого, закрепив перемычку четырьмя саморезами. Получится менее эстетично, но проще.

«Насухо» соберите складные опоры и проверьте их соответствие чертежу. До склейки деталей пройдитесь рубанком или скругляющей фрезой диаметром 12 мм по их рёбрам. Лишь после этого можно ставить все детали на клей, причём используя струбцины. Но чтобы не повредить поверхности деталей, не забывайте о прокладках под щёками струбцин.

И ещё один совет, перед общей сборкой смажьте шканты воском. Это снизит трение в деревянных шарнирах.

Склеив и зачистив доски для столешницы. приступайте к фигурным стыкам её неподвижной части и «крыпьев». Для этого потребуется комплект сопряжённых фрез - одна дпя формирования квадранта и одна - дпя выкружки. Дпя крышки столика толщиной 20 мм подойдут квадрант и выкружка с радиусом 16 мм. Квадрант формируется на рёбрах неподвижной крышки обработкой с верхней стороны.

Еспи можно, установите фрезу в стопе так, чтобы в качестве направляющей удобно было испопьзовать пинейку. Отрегулируйте высоту фрезы так, чтобы до начала квадранта получилась вертикальная грань высотой 4 мм.

Стол-книжка своими руками

Одновременно отфрезеруйте стык на паре обрезков - они понадобятся как вспомогательные блоки при последующем фрезеровании краёв столешницы по всему периметру.

Выкружка формируется на рёбрах крыльев обработкой с нижних поверхностей. Тщательно отрегулируйте высоту фрезы и линейку так, чтобы отфрезеровать полный радиус. Несколькими проходами удапите бопыиую часть лишней древесины, а затем тонко настройте высоту фрезы так, чтобы, когда выкружка ляжет на квадрант, поверхности центрапьной части столешницы и «крыльев» были в одной плоскости.

Сформировав фигурный стык, скруглите углы «крыльев» любым желаемым радиусом. Фрезерование краёв столешницы осуществляется специальными фрезами, причём на фрезере. Фреза больше проёма в столе станка, а часть тела фрезы должна быть под его поверхностью, поэтому для установки фрезы надо опустить привод приблизительно на 10 мм. Для этого из фанеры сделайте кольцевую проставку. Поскольку фрезеровать приходится поперёк торцевого волокна, то во избежание вырывов при выходе фрезы к концу прохода надо прижать вспомогательные блоки.

Для скруглення нижнего ребра крышки используется та же фреза, что и для округления других деталей. Незабудьте зачистить сопрягаемые части.

Прикрепите «крылья» к центральной части столешницы петлями с одной удлинённой картой. Её ось должна находиться в центре радиуса выкружки и квадранта, то есть в данном случае на расстоянии 16 мм от ребра неподвижной крышки. С неподвижной крышки длинные карты раскрытых петель должны дотянуться и закрепиться на крыльях. Чтобы петли хорошо работали, их надо сместить в направлении крыльев на 0,5 - 0,75 мм так, чтобы, когда они опускаются, выкружка отходила от квадранта и не задевала его.

Шарнир петли должен находиться в нише центральной части столешницы. За счёт этого ось петли немного поднимается над нижней поверхностью крышки, и, когда крылья опускаются, ребро выкружки оказывается чуть выше над нижним ребром квадранта. Работу петли лучше попробовать на ранее подготовленных обрезках.

Положите три секции крышки лицевой стороной на плоскую поверхность. Разметьте положение четырёх петель. Врежьте ниши для шарнира и просверлите направляющие отверстия для шурупов. Нарежьте резьбу стальными шурупами. В длинной карте петли шурупы оказываются очень близко к рёбрам крыльев, поэтому убедитесь, что хвостовик шурупа не сломает перемычку между направляющими отверстиями и ребром.

Крышка столика крепится к перемычкам четырьмя деревянными кнопками, входящими в гнёзда на внутренних сторонах верхних перемычек. Думаю, эту процедуру также можно упростить, заменив кнопки шипами, и крепить центральную секцию удобнее к боковинам.

На собранном столике, лежащим лицевой стороной вниз с раскрытыми крыльями, разметьте попожение уголков - ограничителей ножек. На крышке проведите ось симметрии и поверните скпадную опору так, чтобы оси ножки и крышки совпали.

Стол-книжка своими руками

Затем снимите столешницу и петпи. Все части столешницы отциклюйте, отшлифуйте и отделайте древесину на свой вкус. После чего окончательно соберите столик, прикрепив петли новыми, на этот раз более мягкими бронзовыми шурупами.

Как видите, процедура изготовления стыка довольно трудоёмкая и требующая не только дополнительных приспособпений, но и навыков. Поэтому, если не предъявлять жёстких требований к столу, можно поступить проще, отказавшись от фрезерования торцов в местах сочленения центральной секции столешницы и ее «крыльев». При этом достаточно будет обычных петепь, под которые не нужно будет делать выемки в центральной секции столешницы, но «крылья» будут заметно выступать за её габариты.

По материалам иностранной печати

Похожие статьи:
  • Стол для дачи своими руками Стол для дачи своими руками Пользоваться на даче небольшим столиком, перевезённым давным-давно из городской квартиры, было...
    Садовая скамейка своими руками Садовая скамейка своими руками Осенними вечерами приятно посидеть в саду на добротной удобной скамье, сделанной своими руками. В...
    Подставка под цеточные горшки Подставка под цеточные горшки Мобильные контейнеры и необычные кашпо -находка для любого сада! Симпатичную подставку для...
    Скамейки для дачи Скамейки для дачи Всем, кто желает усовершенствовать дизайн садового участка, рекомендую сделать скамейку-качалку. Не...
    Решетки для радиаторов Решетки для радиаторов В старых домах ещё нередко можно встретить чугунные радиаторы отопления, которые исправно несут...
    Делаем садовую мебель из веток Делаем садовую мебель из веток Хочу предложить несколько вариантов изготовления дачных столиков из средних (d 7-14 см) и тонких (d...
  •   ::   просмотров - 3680   ::   комметариев - 0

    Популярное

    календарь дачника
    «    Январь 2026    »
    ПнВтСрЧтПтСбВс
     
    1
    2
    3
    4
    5
    6
    7
    8
    9
    10
    11
    12
    13
    14
    15
    16
    17
    18
    19
    20
    21
    22
    23
    24
    25
    26
    27
    28
    29
    30
    31
     
    Обрати внимание:
    Наши друзья
    Благодаря сайту www.umeltsi.ru вы можете построить дом, дачу, сделать ремонт квартиры, создать самодельные станки, приспособления, тоесть сделать - самоделки своми руками.
    Счетчики